钢结构厂房用途广优点多,跨度设计和计算你了解吗?
- admin
- 2026-01-21
- 钢结构资料库
- 990浏览
诸多现代工业生产用房选用了钢结构,钢结构厂房具备用途广泛的特性,有着建筑简易的特质,拥有经久耐用的优点,具备美观实用的长处,呈现绿色环保的优势简易钢结构厂房特点,拥有安全可靠的特性,是现代工业经济发展的必要条件。以往的工业厂房大多是以混凝土结构为主要形式,现今钢结构不但成为工业厂房的优先选择,并且成为建筑行业里的突出优势者,被称作“绿色建筑”的代表 。
如果要建钢结构厂房,厂房的跨度可以随意设计吗?
不。钢结构厂房跨度不可以随意设定。
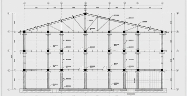
是厂房跨度的定义是什么呢,于建筑工程里,设计图纸之上所标注的,乃是两个相邻纵向定位轴线之间的跨度,通俗来说呢,是厂房结构方面,也就是两排支柱的间距,常用跨度是在6至24米范围,通常是3的倍数,15至30米跨度的以钢筋混凝土厂房为主,36米以及超过36米跨度的那是以钢结构厂房为主 。
钢结构厂房跨度怎样计算呢,定位轴以外的网格线称作定位线,它能用来明确模块化构件尺寸,模块化网架能够采用单轴定位,或者双轴定位,还能两者同时使用,这要依据建筑设计、施工、构件生产等情况综合来确定,连续模块化网架可以采用单轴定位,当模块化网格需要间隔形成一个中间区域时,能够使用双轴定位。

定位轴线要跟主网格轴线相重合,定位线之间存在着距离,像是跨度、柱距、层高等,这些距离应当符合能够确定结构或者构件位置以及标高的模数大小,结构构件跟平面定位线相连接,这种连接要有利于构件,像梁、板、屋架等水平与竖向构件,还有墙、柱等的统一互换,从而让结构构件受力变得合理,使结构得到简化。
钢结构厂房存在大小的区分,还存在双层以及多层的钢结构厂房,具体情况要看厂房规划设计的要求,同时跨度是有模数的,要考虑结构能够接受的跨度情形简易钢结构厂房特点,通过综合对比来确定,具体的跨度是在建造之前依据具体要求而去设计确定的,不可以随便进行修改 。
钢结构厂房厂房跨度设计
本站文章除注明转载/出处外,均为本站原创或翻译。若要转载请务必注明出处,尊重他人劳动成果共创和谐网络环境。
转载请注明 : 文章转载自 » 麦子二手钢结构 » 钢结构资料库 » 钢结构厂房用途广优点多,跨度设计和计算你了解吗?